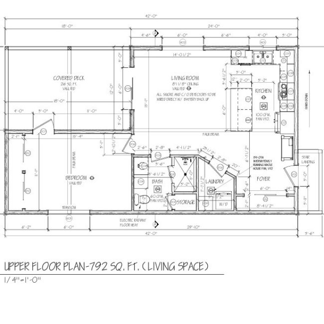
Explore our recent ADU construction projects throughout Snohomish County and the Greater Seattle area. These projects show how ADUs can add flexible living space, increase property value, and make better use of existing property.
Our team builds both attached ADUs and detached ADUs (DADUs). Each project is planned around the property, local building requirements, and the homeowner’s goals.
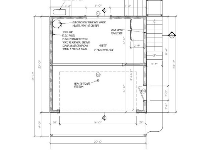
First Avenue Homes replaced an outdated garage with a ~400 sq. ft. two-story detached ADU built above a new ~400 sq. ft. garage. The project turned underused space into modern, functional living while maintaining useful garage space below.














































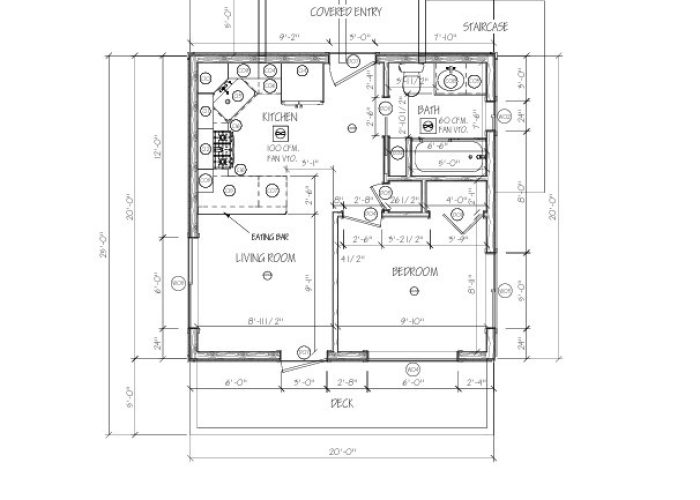
This Barn Loft ADU converts unused space above a garage into a practical living area. The finished unit provides comfortable housing for guests, extended family, or rental income while fitting naturally with the existing property.



































First Avenue Homes built an ADU in Snohomish.

























First Avenue Homes helps homeowners through every stage of ADU construction projects, from planning and permits to final building. Our goal is to create durable, well-built living spaces that expand how homeowners use their property.
Interested in seeing more of our work? Explore our other residential construction project galleries, including our featured projects, home additions, outdoor living spaces, and site preparation.