Explore our recent home addition construction projects throughout Snohomish County and the Greater Seattle area. These projects show how well-planned additions can expand living space, improve functionality, and increase long-term property value.
First Avenue Homes builds additions that integrate with the existing structure while providing the extra space homeowners need.
This contemporary bathroom addition in Snohomish County features a custom tiled shower, quartz countertops, and modern fixtures. First Avenue Homes expanded the home to improve functionality, comfort, and style, enhancing both everyday living and property value.











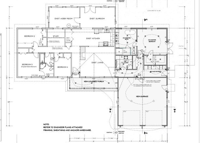
This ~1,000 sq. ft. rambler addition was built as a Supershell. The project included a new master suite and garage. The exterior structure was fully framed and weather-tight, leaving the interior finishes for the homeowner to customize.
























For the Basement Transformation, we excavated and converted ~1,000 sq. ft. of basement space into a functional living area. The finished layout includes three rooms, a storage closet, a bathroom, and a new exterior staircase.


































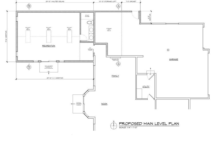
First Avenue Homes built a one-story garage extension of ~283 sq. ft. and a ~608 sq. ft. bonus room with a new ¾ bath. The addition connects to the existing home and garage to create a cohesive expansion.
The Supershell provided a fully framed, weather-tight exterior while leaving the interior finishes for the homeowner to complete.
















First Avenue Homes guides homeowners through every stage of home addition projects — from initial planning and permits to final construction. Our goal is to create seamless, functional, and well-built spaces that expand how you live in your home.
Interested in seeing more of our work? Explore our other residential construction project galleries, including our featured projects, ADUs, remodels, outdoor living spaces, and site preparation.